Café detail drawing file. Download free cad file | CADBULL
Description
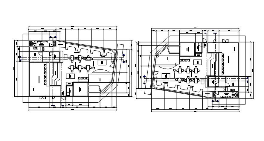
Enlarged floor plan of cafe detail drawing specified in this AutoCAD file. this file consists of the furniture layout plan of the dining area, services and utilities detail drawing given with dimensions and specifications. this can be used by architects and engineers. Download this 2d AutoCAD drawing file.
Uploaded by:

